

住居賃貸物件 プラン
【1フロア1住戸】専有面積106㎡超!設備充実の3LDKレジデンス
若松河田・東新宿の3駅利用可/カード払い相談可能
アクセス便利な立地
- 都営大江戸線「若松河田」駅 徒歩6分
- 東京メトロ副都心線「東新宿」駅 徒歩9分
- 都営新宿線「曙橋」駅徒歩8分
新宿エリアへのアクセスも良好な利便性の高い立地です。
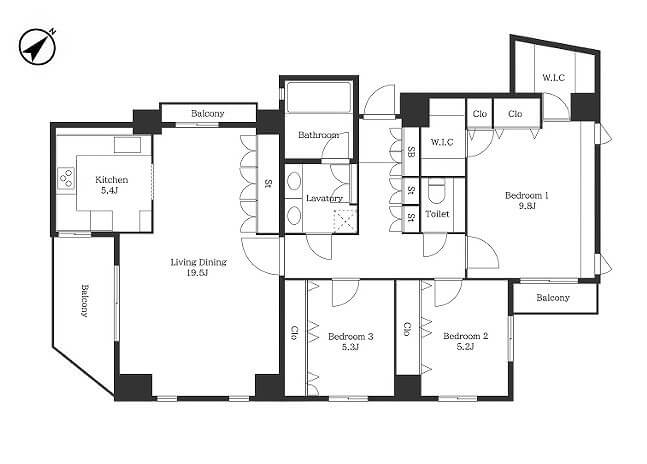
広々とした贅沢な3LDK+2WIC(専有面積:106.23㎡)
- 1フロア1住戸のため、プライバシー性と静音性が確保された特別な空間。
- ゆとりのある設計で、リビングも各部屋も広々とした住まいです。
最新設備で快適な暮らしをサポート
- エレベーター完備・オートロック・宅配ボックス
- エアコン3基(うち2基新品)/シーリングライト4基新品
- 浴室乾燥機(新品)・追い炊き機能付きバス
- トイレ・ウォシュレット本体新品
キッチン・水回りも高機能仕様
- 3口ビルトインガスコンロ/ビルトインオーブンレンジ(新品)
- ビルトイン食洗器(新品)/キッチンタッチレス水栓(新品)
- 洗面化粧台×2・室内洗濯機置場・室内物干しスペース
収納も充実◎
- ウォークインクローゼット/クローゼット
- シューズボックス(新品)
その他ポイント
- TVモニター付きインターホン(新品)/ディンプルキー採用
- 賃料クレジットカード払い相談可!
設備・広さ・プライバシーすべてを兼ね備えた希少な1フロア1住戸の高級2LDK。
都心の利便性と落ち着いた住環境を求める方におすすめです。
お気軽に内見・お問い合わせください!
必要があれば、ペット可否・築年数・賃料・管理費などの情報も追加して再構成できますので、お申し付けください!
プラン②
同一建物の物件は、こちらにも御座います。
是非ご覧ください。
フォトギャラリー



































































物件番号 | 0069 |
賃料 | 380,000円 |
共益費等 | 10,000円 |
敷金 | 2ヶ月(償却無し) |
礼金 | 0ヶ月 |
更新料 | 新賃料の1.1ヶ月分 |
保証金 | – |
築年月 | 1999年9月 |
専有面積 | 106.23㎡ |
バルコニー | 有り (2面バルコニー) |
入居日 | 即時 |
駐輪場 | なし |
構造規模 | 鉄筋コンクリート造5階建 |
募集階 | 2F |
間取り | 3LDK+2WIC |
所在地 | 東京都新宿区余丁町 |
交通 | 都営大江戸線「若松河田」駅徒歩6分 都営新宿線「曙橋」駅徒歩8分 東京メトロ副都心線「東新宿」駅徒歩9分 |
備考 | ・契約期間:2ヶ年間 短期違約:あり(2年以内の解約で賃料1ヶ月)※違約不可の場合、礼+1 ・保証会社:要加入(指定)賃料+共益費の50% ※加入不可の場合、敷3礼1 ・火災保険:要加入(指定)30,000円~ ・2人入居:連名契約+保証会社+各連帯保証人 ・ペット飼育:敷+1(退去時償却)※別途サイズ・頭数制限、飼育細則あり ・駐車場:空きあり月額32,00032,000~42,000 円(税別 サイズ制限あり ・クリーニング費用:退去時140,000円(税別) ・鍵交換費用:入居時25,000円(税別) 事務所等事業用としての使用時には消費税及び地方消費税が課されます。消費税率が変更された場合には、以後変更後の税率が課されることとなります。 |
取引態様 | 媒介 |
更新日 | 2025年10月19日 |
次回更新予定日 | 2025年12月18日予定 |
注意事項
※ご成約時に、仲介手数料として賃料の1.1ヶ月分を申し受けます。
※図面と現況が異なる場合が現況優先とします。
※掲載情報は一部抜粋した情報になります。
詳細につきましてはお問い合わせください。